Nieuw in verkoop:Schutmeesterweg 26, 3615 CD Westbroek - Foto
Nieuw in verkoop
+45

Schutmeesterweg 26 3615 CD Westbroek € 500.000,- k.k.

  • Woonhuis
  • 5 kamers
  • 4 slaapkamers
  • 1 badkamers
  • Bouwjaar 1980
  • 141 m² perceeloppervlakte
  • 118 m² gebruiksoppervlakte
  • A Energielabel A

Beschrijving

Zoek je een rustige woonomgeving waar de kinderen veilig op straat kunnen spelen? Maar wil je ook af en toe met de fiets naar de stad Utrecht of snel met de auto op de snelweg zitten? Dan zou deze uitgebouwde gezinswoning met vier slaapkamers jouw nieuwe woning kunnen zijn!

WIL JE DEZE WONING BEZICHTIGEN? GA NAAR DE WONING OP ONZE EIGEN WEBSITE EN KIES ZELF HET TIJDSTIP DAT JOU PAST IN DE ONLINE AGENDA.

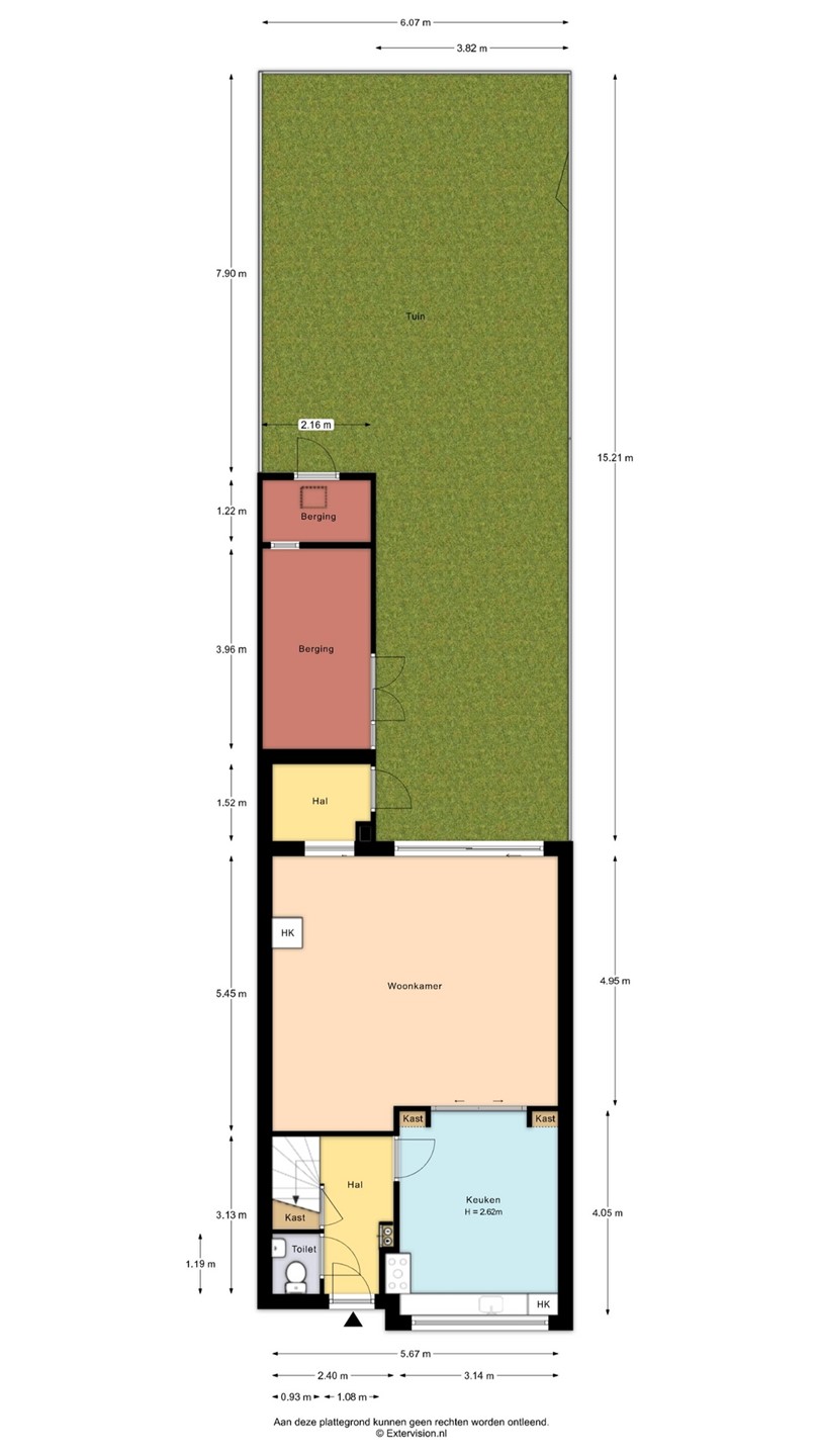
Het huis is uitgebouwd over de volle breedte en heeft daardoor een ruime woonkamer en een aparte leefkeuken. Vanuit de woonkamer met gashaard loop je in de zomer via de grote schuifpui zo de diepe achtertuin in. In de winter houd je de warmte binnen door het extra halletje dat toegang geeft tot de tuin. De tuin grenst aan een slootje en heeft meerdere terrassen; via de achterom kun je gemakkelijk de fietsen of motor in de aangebouwde stenen berging zetten. De tuin is gelegen op het noordoosten, maar door de diepte van de tuin kun je hier de hele dag genieten van de zon. De woonkeuken ligt aan de straatzijde en is afsluitbaar met mooie oude schuifdeuren.

Op de eerste verdieping liggen drie ruime slaapkamers, waarvan één op dit moment gebruikt wordt als waskamer. De badkamer heeft een ligbad, aparte douche, wastafelmeubel en toilet.

Op de tweede verdieping, bereikbaar met een vaste trap, vind je de vierde, royale slaapkamer met wastafel. De voorzolder heeft veel bergruimte; hier hangt ook de CV-ketel en is ruimte om de aansluiting te maken voor de wasmachine en droger.

Bijzonderheden
Over de volle breedte uitgebouwd
Geheel voorzien van kunststof kozijnen (deels met tripel en deels HR++ glas)
Nieuwe CV-ketel uit 2022
12 zonnepanelen uit 2022
Nieuwe groepenkast
Achtertuin met achterom
Stenen berging met elektra
Gelegen aan een autoluw straatje en vlakbij meerdere speeltuintjes en een voetbalveldje
Energielabel A, geldig tot 03-02-2036

Omgeving
Westbroek is een charmant en landelijk gelegen dorp, omringd door weilanden en natuur, met een basisschool op loopafstand, sportfaciliteiten in het dorp, een dorpscafé en via de nabijgelegen A27 / N230 een snelle verbinding naar Utrecht, Amsterdam of Amersfoort. In de directe omgeving vind je wandel- en fietsroutes. Rust, ruimte en bereikbaarheid komen hier perfect samen.

Kaart

Kenmerken

Overdracht

Referentienummer
00178
Vraagprijs
€ 500.000,- k.k.
Status
Nieuw in verkoop
Aanvaarding
In overleg
Aangeboden sinds
Zondag 8 maart 2026

Bouw

Type object
Woonhuis, eengezinswoning, tussenwoning
Soort bouw
Bestaande bouw
Bouwperiode
1980
Dakbedekking
Dakpannen
Type dak
Zadeldak
Isolatievormen
Dakisolatie
Driedubbel glas
Dubbel glas
HR-glas
Muurisolatie
Vloerisolatie

Oppervlaktes en inhoud

Perceeloppervlakte
141 m²
Woonoppervlakte
118 m²
Inhoud
419 m³
Oppervlakte overige inpandige ruimten
11,4 m²

Indeling

Aantal bouwlagen
3
Aantal kamers
5 (waarvan 4 slaapkamers)
Aantal badkamers
1 (en 1 apart toilet)

Locatie

Ligging
Aan rustige weg
In woonwijk

Tuin

Type
Achtertuin
Hoofdtuin
Ja
Oriëntering
Noord-oost
Heeft een achterom
Ja
Staat
Goed onderhouden

Energieverbruik

Energielabel
A

CV ketel

CV ketel
Gefit
Warmtebron
Gas
Bouwjaar
2022
Combiketel
Ja
Eigendom
Eigendom

Uitrusting

Warm water
CV-ketel
Verwarmingssysteem
Centrale verwarming
Gashaard
Zonnecollectoren
Keukenvoorzieningen
Inbouwapparatuur
Badkamervoorzieningen
Douche
Ligbad
Toilet
Wastafelmeubel
Tuin aanwezig
Ja
Heeft schuur/berging
Ja
Heeft zonnepanelen
Ja

Kadastrale gegevens

Kadastrale aanduiding
Maartensdijk K 1151
Perceeloppervlakte
141 m²
Omvang
Geheel perceel
Eigendomsituatie
Eigen grond

Brochure(s) en overige bijlagen

Brochure-schutmeesterweg26.pdf Download