Nieuw in verkoop:Graspieper 13, 3738 SB Maartensdijk - Foto
Nieuw in verkoop
+47

Graspieper 13 3738 SB Maartensdijk € 600.000,- k.k.

  • Woonhuis
  • 5 kamers
  • 4 slaapkamers
  • 1 badkamer
  • Bouwjaar 1979
  • 217 m² perceeloppervlakte
  • 138 m² gebruiksoppervlakte
  • A Energielabel A

Beschrijving

Ben je op zoek naar een fijne gezinswoning? Met de basisschool om de hoek en voorzieningen op loopafstand? En in een rustige buurt met alleen bestemmingsverkeer? Deze ruime, uitgebouwde en lichte tussenwoning met vier slaapkamers en een tuin op het zuiden biedt het allemaal. De leefruimte op de begane grond is heel ruim, net als de ruimte op de verdiepingen. Hier kun je als gezin met opgroeiende kinderen alle kanten op.
De woning is flink opgeknapt en daardoor comfortabel en energiezuinig. Er is HR++ glas, kunststof kozijnen, zonnepanelen en vloerverwarming.
Zowel aan de voor- als aan de achterzijde heb je een vrij uitzicht op het groen. Parkeren kan op de eigen parkeerplek in de voortuin.

WIL JE DEZE WONING BEZICHTIGEN? GA NAAR DE WONING OP ONZE EIGEN WEBSITE EN KIES ZELF HET TIJDSTIP DAT JOU PAST IN DE ONLINE AGENDA.

Maartensdijk is een rustig en groen dorp, ideaal gelegen tussen Utrecht en Hilversum. In het centrum vind je alle benodigdheden voor de dagelijkse boodschappen met onder andere een supermarkt en de, in de wijde omtrek befaamde, groentespeciaalzaak Landwaart Culinair. Voor ontspanning zijn er volop mogelijkheden in de omgeving, naar de Loosdrechtse Plassen voor het water of naar het uitgebreide bosgebied rond Lage Vuursche. Voor elk wat wils! De bereikbaarheid is ook uitstekend, de snelweg A27 is nabijgelegen.

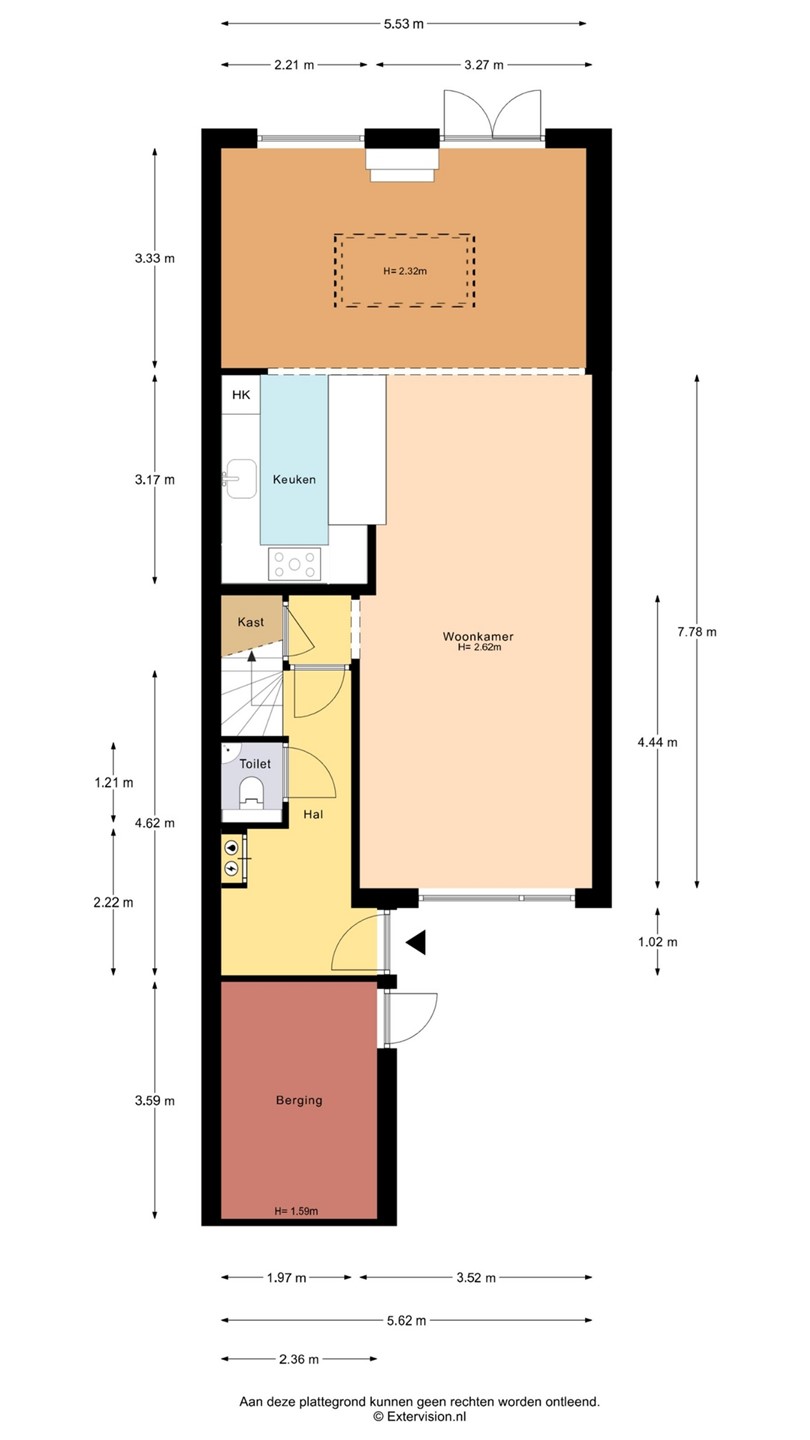
Indeling

Voortuin met eigen parkeerplek en toegang tot de aangebouwde berging met vliering.
Voordeur, ruime hal met meterkast, modern toilet en trap naar de eerste verdieping. Toegang tot de woonkamer.
De woonkamer is zeer ruim. Aan de voorzijde ligt de zithoek met ruimte voor een royale bank om met z'n allen gezellig te zitten en tv te kijken.
De eetkamer ligt in de uitbouw en heeft openslaande deuren naar de achtertuin. Door de nieuwe lichtkoepel is deze ruimte nog lichter geworden. Naast de eettafel is hier ruimte voor een tweede zithoek.
De keuken in u-vorm is half open en heeft een barretje voor de verbinding naar de kamer. De keuken is voorzien van alle inbouwapparatuur, zoals een 6-pits fornuis met oven, aparte koelkast en vriezer, combi magnetron/oven en biedt veel aanrechtruimte.
De gehele begane grond (behalve het toilet) is voorzien van vloerverwarming.

Eerste verdieping
Op deze verdieping liggen drie goede slaapkamers en een zeer royale badkamer met dubbele wastafel, een bubbelbad, toilet en aparte douche. Vanuit het bubbelbad kun je door het grote dakraam genieten van de sterrenhemel.

Tweede verdieping
Voorzolder met bergruimte achter knieschotten, wasmachine-aansluiting en opstelplaats voor de CV-ketel. Grote zolderkamer met dakkapel en Velux dakraam.

Tuin
De achtertuin is fraai aangelegd en ligt op het zuiden. Achterin de tuin staat een stenen schuur en is een poort naar het achterpad. Achter de tuin ligt een grasveldje en door het ontbreken van achterburen zit je heel vrij in de tuin.

Bijzonderheden
* Bijna volledig voorzien van HR++ glas, grotendeels in nieuwe kunststof kozijnen
* Schuine dak van binnenuit geïsoleerd
* Dakbedekking uitbouw en dakkapel vernieuwd
* Schoorsteen opnieuw gevoegd
* Extra dakramen geplaatst
* Gehele begane grond heeft vloerverwarming
* Verdiepingen voorzien van eikenlook pvc-vloeren
* Groot dakraam geplaatst in de uitbouw
* Voorzien van 7 zonnepanelen
* Energielabel A, d.d. 7-4-2026
* Op loopafstand van basisschool en centrum
* Vrij gelegen aan voor- en achterzijde
* Goede ontsluiting via A27
* Twee bergingen, aan de voorzijde en achterin de tuin

Kaart

Kenmerken

Overdracht

Referentienummer
00181
Vraagprijs
€ 600.000,- k.k.
Status
Nieuw in verkoop
Aanvaarding
In overleg
Aangeboden sinds
Donderdag 16 april 2026

Bouw

Type object
Woonhuis, eengezinswoning, tussenwoning
Soort bouw
Bestaande bouw
Bouwperiode
1979
Dakbedekking
Dakpannen
Type dak
Zadeldak
Isolatievormen
Dakisolatie
Dubbel glas
HR-glas

Oppervlaktes en inhoud

Perceeloppervlakte
217 m²
Woonoppervlakte
138 m²
Inhoud
486 m³
Oppervlakte overige inpandige ruimten
8,5 m²
Oppervlakte externe bergruimte
11 m²

Indeling

Aantal bouwlagen
3
Aantal kamers
5 (waarvan 4 slaapkamers)
Aantal badkamers
1 (en 1 apart toilet)

Locatie

Ligging
Aan rustige weg
In woonwijk
Nabij school

Tuin

Type
Achtertuin
Hoofdtuin
Ja
Oriëntering
Zuiden
Heeft een achterom
Ja
Staat
Goed onderhouden

Energieverbruik

Energielabel
A

CV ketel

CV ketel
Remha Tzerra
Warmtebron
Gas
Bouwjaar
2016
Combiketel
Ja
Eigendom
Eigendom

Uitrusting

Aantal parkeerplaatsen
1
Warm water
CV-ketel
Verwarmingssysteem
Centrale verwarming
Keukenvoorzieningen
Inbouwapparatuur
Kookeiland
Badkamervoorzieningen
Douche
Jacuzzi
Toilet
Wastafelmeubel
Tuin aanwezig
Ja
Heeft schuur/berging
Ja
Heeft zonnepanelen
Ja

Kadastrale gegevens

Kadastrale aanduiding
Maartensdijk B 3311
Perceeloppervlakte
6 m²
Omvang
Geheel perceel
Eigendomsituatie
Eigen grond
Kadastrale aanduiding
Maartensdijk B 2572
Perceeloppervlakte
211 m²
Omvang
Geheel perceel
Eigendomsituatie
Eigen grond

Brochure(s) en overige bijlagen

Brochure-graspieper13.pdf Download